ID CP2872780

Vânzare Casă Unifamilială Cuplată | Acces privat | Tehnologii premium

ID CP2872780

435,000 € (negociabil)

Casă / Vilă cu 5 camere de vânzare
Iris, Cluj-Napoca
237 mp
2025

Propunem spre vânzare o casă unifamilială în regim cuplat, cu autorizație de construire proprie, înscrisă în C.F., aflată într-o zonă reglementată prin P.U.Z. dedicată locuințelor noi. Proprietatea este semifinisată, construită la standarde superioare de calitate, cu accent pe eficiență energetică, confort și durabilitate.

Acces & vecinătăți

Accesul se realizează din drumul public pe un drum privat asfaltat, ce va fi securizat cu poartă electrică, deservind o curte comună împărțită exclusiv cu coproprietarii drumului.

Construcție & specificații tehnice:

Structură: fundații și diafragme din beton armat, hidroizolate, cu dren perimetral

Zidărie: cărămidă tencuită interior–exterior

Izolații:

fațadă cu vata bazaltică 15 cm Knauf Dual Density

planșee izolate fonic și termic cu BCU

planșeu etaj–pod: vata bazaltică 30 cm

placă pe sol: izolație 20 cm

Acoperiș: șarpantă lemn, țiglă ceramică Creaton Balance Cupru

Fațadă: tencuială decorativă STO Marlit

Tâmplărie: Rehau Synego & Geneo, tripan

Instalații:

electrică din cupru, doze modulare

priză trifazică în garaj (încărcare auto electric)

încălzire în pardoseală TECE în toată casa (inclusiv garaj)

infrastructură AC multisplit (o unitate exterioară, 4 interioare)

infrastructură pompă de căldură aer–apă

infrastructură panouri solare

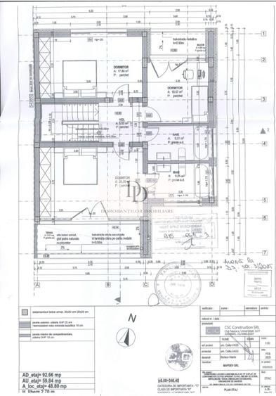
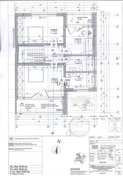
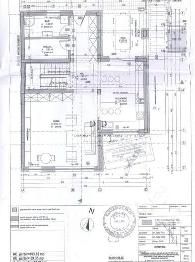
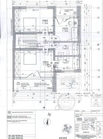
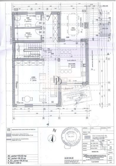
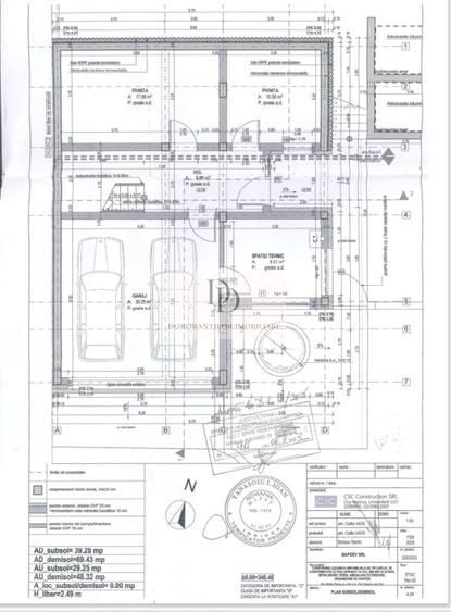
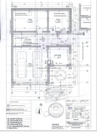
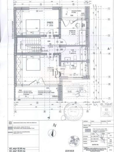
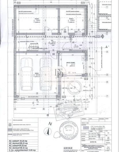
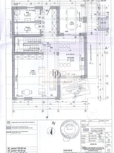
Suprafețe & compartimentare:

Suprafață construită desfășurată: 305 mp

Suprafață utilă totală: 237 mp

Demisol – 76,76 mp utili

Garaj dublu, birou, spațiu tehnic, pivniță, hol.

Parter – 81,60 mp utili

Living, bucătărie, baie, cămară, hol, terasă acoperită.

Etaj – 78,61 mp utili

Dormitor matrimonial cu baie proprie, hol, două dormitoare, baie, terasă acoperită și balcon acoperit.

Pod mansardabil – posibilitate de extindere.

Utilități:

Apă, canalizare menajeră și pluvială, curent trifazic, gaz, fibră optică.

Localizare & accesibilitate:

9 min pietonal până la Auchan

3 min pietonal până la stațiile de tramvai și autobuz

17 min pietonal până la Rivus Mall (în dezvoltare – cel mai mare mall din țară)

15 min pietonal până la Școala Nicolae Iorga și Grădinița Floare de Iris

10 min pietonal până la noua școală din ansamblul Elite City, preluată de Școala Ion Agârbiceanu

O proprietate solid construită, pregătită pentru personalizare, cu tehnologii moderne, acces privat și poziționare excelentă – ideală pentru o familie care caută confort urban, liniște și perspective de creștere a valorii.

📞 Pentru detalii suplimentare și programarea unei vizionări, vă stăm la dispoziție.

Citește mai mult

  • Număr camere
    5
  • Dormitoare
    3
  • Număr bucătării
    1
  • Număr băi
    3
  • Geam la baie
    Da
  • Număr balcoane
    2
  • Număr terase
    1
  • Număr garaje
    2
  • Număr locuri parcare
    2
  • Disponibilitate
    Imediat
  • Tip casă
    Duplex
  • Stare interior
    Semifinisat
  • Anul finisării
    2025
  • Suprafață utilă
    237 mp
  • Suprafață construită
    305 mp
  • Suprafață construită la sol (Amprentă)
    160.0 mp
  • Suprafață teren
    300 mp
  • Suprafață curte liberă
    200 mp
  • Acoperiș
    Țiglă
  • Stadiu construcție
    Semifinisat
  • An construcție
    2025
  • Construcție nouă
    Da
  • Tip construcție
    Beton
  • Număr etaje clădire
    1
  • Are demisol
    Da
  • Are pod
    Da

Facilități

Acoperiș
Aer condiționat
Apă
Bucătărie deschisă
Canalizare
CATV
Centrală proprie
Contor căldură
Contor electric
Contor gaz
Curent
Curte
Garaj
Gaz
Geamuri termopan
Glet
Grădină proprie
Iluminat stradal
Încălzire prin pardoseală
Izolație exterioară
Loc de joacă copii
Mijloace de transport în comun
Nemobilat
Parcare deschisă
Pompă de căldură
Șapă
Străzi asfaltate
Ușă intrare metal
Ligia OLTEAN - Dorobantilor Imobiliare
Ligia OLTEAN
Owner Agentie

0743195523


Solicită chiar acum o vizionare
Nume
Telefon
Email
Sună acum Solicită vizionare
Necesare:

Site-ul nu poate funcționa corect fără aceste cookie-uri. Vezi cookie-urile

Statistică:

Strângem statistici anonime despre voi, vizitatorii unici, pentru a vă îmbunătăți experiența dumneavoastră. Vezi cookie-urile

Marketing:

Pentru a ne promova mai eficient serviciile noastre, folosim cookies pentru a vă identifica și a vă oferi proprietăți și servicii personalizate. Vezi cookie-urile

Acest site folosește cookies, află detalii. Alege ce tipuri de cookies dorești să permitem: